d

Alienum phaedrum torquatos
nec eu, vis detraxit periculis ex,
nihil expetendis in mei.

contact
neva@office.com
+456933336454
2606 Saints Alley
Tampa, FL 33602
Follow Us

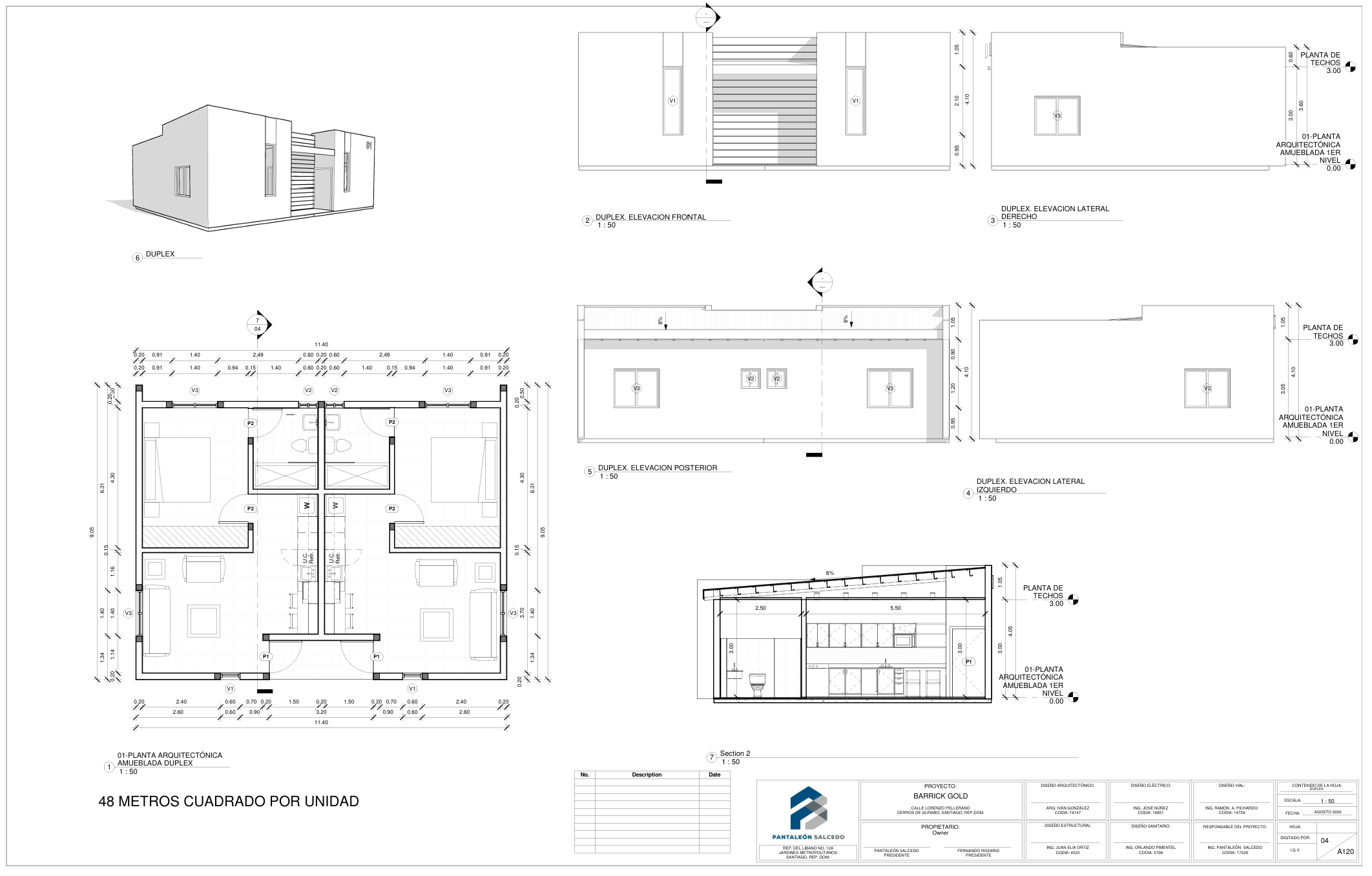
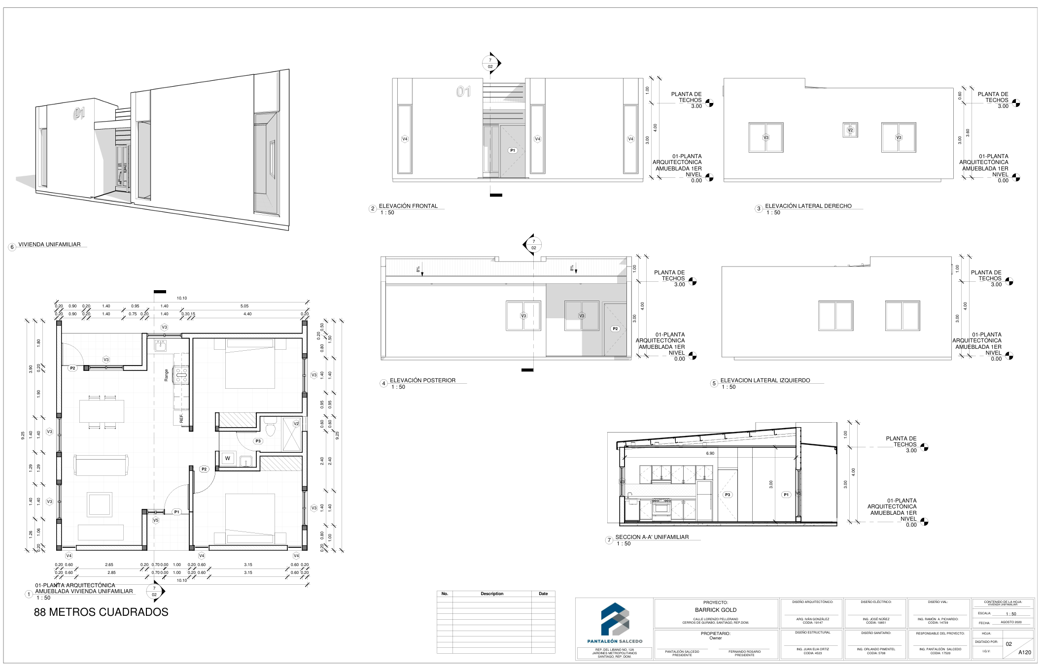
Barrick Gold

Proyecto de casas económicas diseñadas y construídas para brindar un hogar a los trabajadores de Barrick Gold.

Desarrolladores: 
Pantaleón Salcedo
 
Arquitectura: 
Arq. Nilsa Amelia Suárez
 
Paisajismo: 
Arq. Otniel De Moya