d

Alienum phaedrum torquatos
nec eu, vis detraxit periculis ex,
nihil expetendis in mei.

contact
neva@office.com
+456933336454
2606 Saints Alley
Tampa, FL 33602
Follow Us

Proyecto residencial, ubicado en Santiago de los Caballeros, en el sector Las Carmelitas. Que dará un hogar a 24 familias cada una de estar personalizadas a sus necesidades, busca ofrecer a estas familias un ambiente que los transporte a la naturaleza de manera segura.

El complejo cuenta con dos espacios de recreación : Casa CANOPY & Casa Fitness.

Desarrolladores: 
Pantaleón Salcedo | 
Ideare Group
 
Arquitectura: 
Arq. Nilsa Amelia Suárez
Arq. María Fernanda Rosario
 
Asesoría:
Arq. Mariví Bonilla
 
Coordinación técnica
Arq. Mayté Franco

Canopy Living tiene como objetivo crear un ambiente natural y forestal. Creando un camino urbano hacia un entorno natural, proporcionando privacidad a los habitantes con áreas verdes
entre casas.

La calle tiene dos tipos de texturas haciendo la experiencia más dinámica y misteriosa.

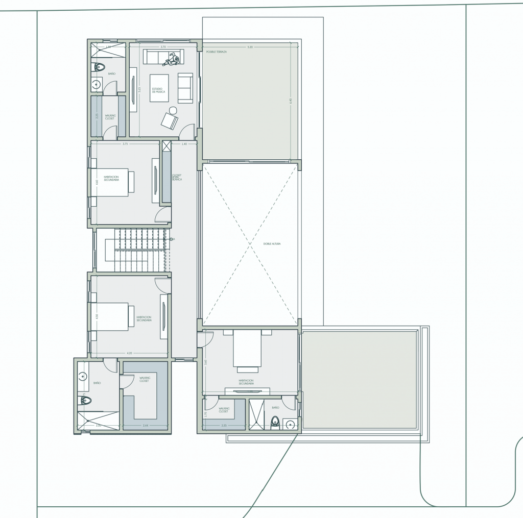
Casa CANOPY, área social que cuenta con terraza estudio, cocina y baño.

CANOPY Fitness, Zona de bienestar con gimnasio, campo de entrenamiento, terraza, parque infantil para adultos y niños.

Además 17 estacionamientos
para actividades extraordinarias.

Casa Canario

Un hogar que valora las áreas sociales por encima de todo. Esta casa es para una familia de músicos a los que les encanta la fiesta, creamos espacios sociales integrados que se conectan con la gran área al aire libre.

 

Casa Colibrí

Una vivienda que conecta con la naturaleza en todos sus espacios. Una entrada frontal oculta que crea misterio en las fachadas y luego descubre espacios amplios e integrados que se conectan con gracia con el patio trasero.

Casa de un solo nivel para una pareja de ancianos que integró un jardín interior y exterior para una experiencia completa a través de la naturaleza.