d

Alienum phaedrum torquatos
nec eu, vis detraxit periculis ex,
nihil expetendis in mei.

contact
neva@office.com
+456933336454
2606 Saints Alley
Tampa, FL 33602
Follow Us

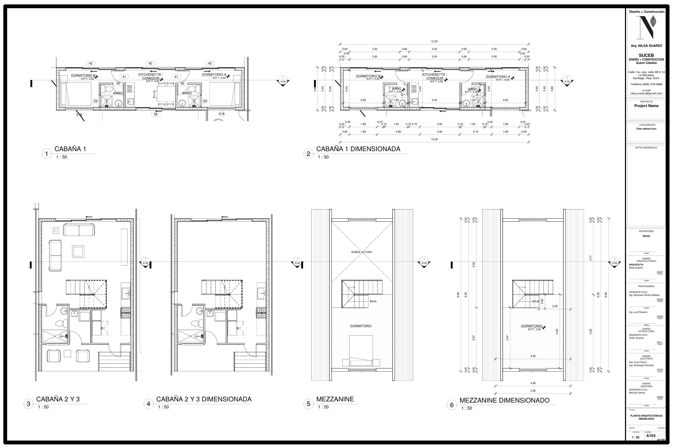
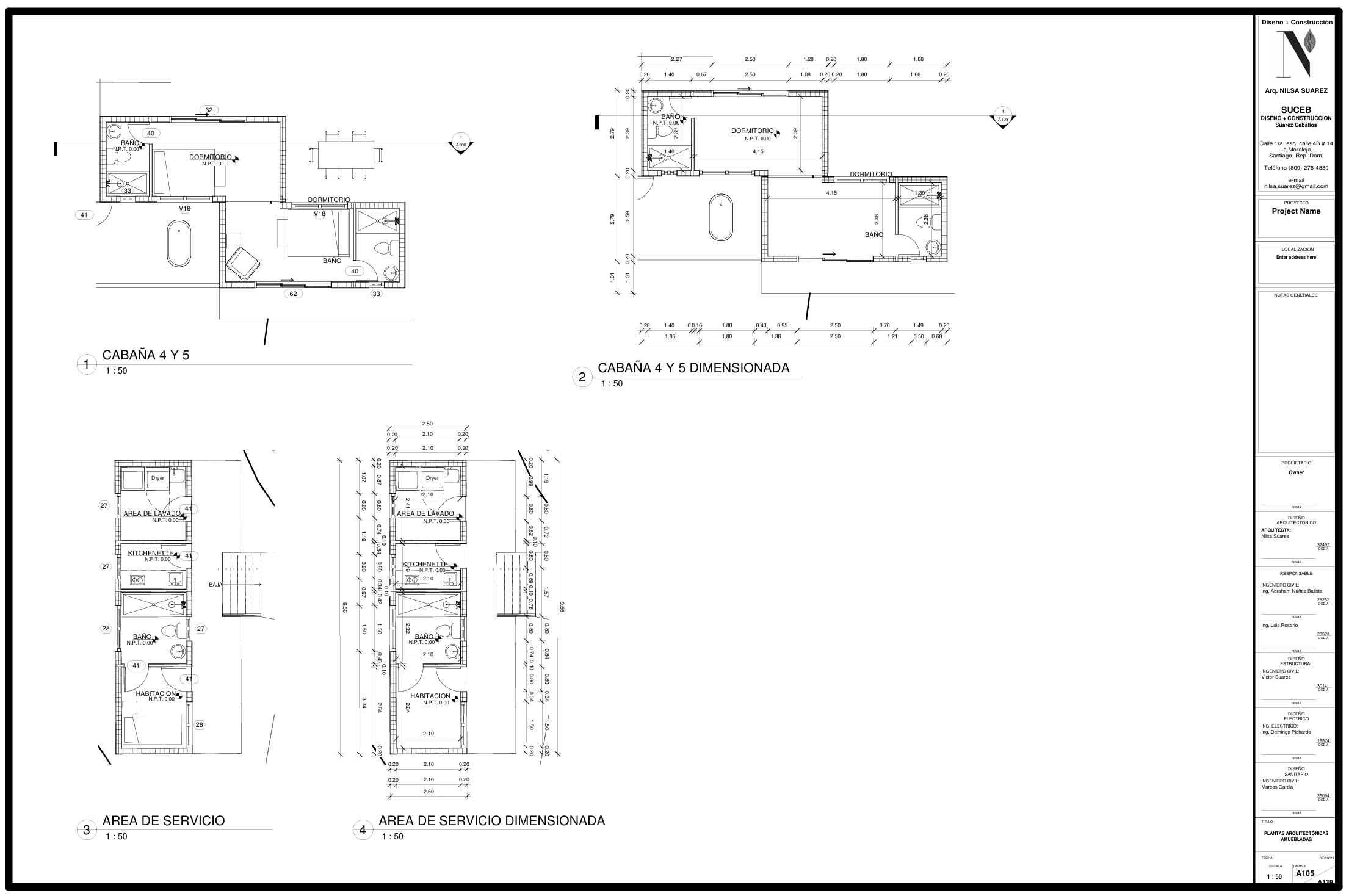
Casa Montaña, Pedro García

Son 2 casas de dos aguas o ahora nominadas A frame, con una superficie menor de 40 metros cuadrados, pensadas para el descanso o como una forma más simple y económica de vivir.

Estas casas se complementan de contenedores con pequeñas habitaciones con vista hacia la montaña permitiendo un ambiente cómodo, acogedor.

Desarrolladores: 
Ing. Francisco José Genao
 
Arquitectura: 
Arq. Nilsa Amelia Suárez
 
Colaboradora: 
Arq. Pamela Cordero
 
Rendering:
Arq. Ariel Báez