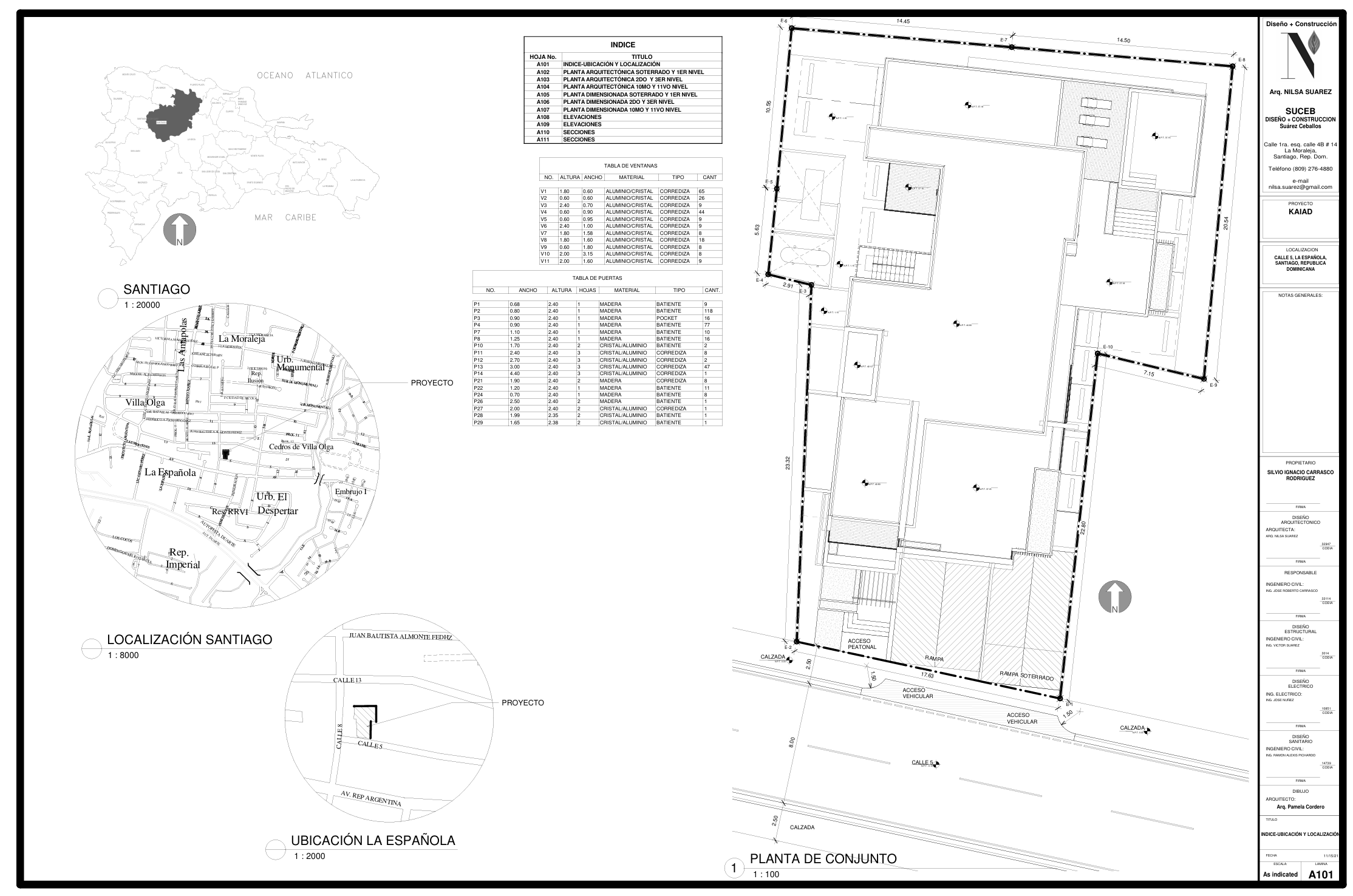
KAIDA, propuesta residencial de 10 niveles ubicada en la española.
Tiene un estilo arquitectónico contemporáneo, cuenta con unas fachadas de pieles en colores tierra, creando así una sensación además de estética, cautivadora para Santiago.
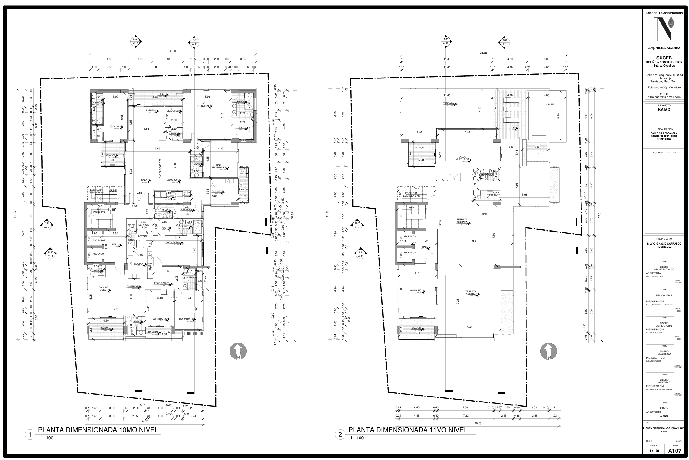
KAIAD cuenta con un área social de 400 mts2 ubicado en el más alto nivel de la torre.
Estos espacios lo tenemos conceptualizados en área de bienestar, donde tenemos el espacio de ejercitarnos tanto al interior en el gimnasio como al exterior en un espacio dual de áreas verdes, cuenta también con un área de zonas húmedas, donde incluimos un picuzzi. Nuestro ambiente social, disfrutará de una gran área de terraza con kitchen/bar integrado y un estudio o salón de usos múltiples para actividad exclusiva para los residentes.















